69m2 2+1 Prefabrik Konut

69m2 2+1 Prefabrik Konut

Minimalist Yaşam İçin Akıllı Bir Seçim

Günümüzde küçük ama işlevsel yaşam alanlarına olan ilgi giderek artıyor.
Kuzey Konteyner & Prefabrik 69 m² ev modeli, sade yaşam tarzını benimseyenler için konfor, estetik ve işlevselliği bir arada sunuyor.

Bu ev modeli, 1+1 planlı yapısıyla, hem bireyler hem de küçük aileler için ideal bir yaşam alanı oluşturur.
Doğayla iç içe, şehirden uzak veya arsa üzerine müstakil olarak konumlandırılabilir.


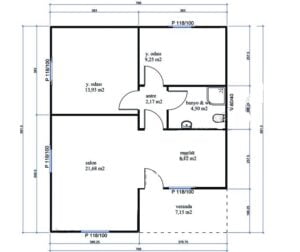
🏡 Plan Özeti

  • Toplam kullanım alanı: 69 m²

  • 1 yatak odası + 1 salon

  • Modern mutfak + banyo

  • İsteğe bağlı veranda alanı

  • Tek katlı kompakt yaşam planı


Yüksek Kaliteli Malzemeler, Uzun Ömürlü Kullanım

Kuzey Konteyner & Prefabrik, üretiminde 1. sınıf galvanizli çelik konstrüksiyon sistemleri kullanır.
Bu sayede 69 m² prefabrik ev modeli, dayanıklı, depreme karşı güvenli ve uzun ömürlü bir yapı sunar.

Duvar panellerinde kullanılan EPS veya taş yünü yalıtım malzemeleri, yüksek ısı ve ses izolasyonu sağlayarak dört mevsim boyunca konforlu yaşam imkânı sunar.


⚙️ Teknik Özellikler

  • Galvanizli çelik taşıyıcı sistem

  • A1 sınıfı yanmaz dış cephe kaplama

  • Yüksek ısı ve ses yalıtımı

  • PVC çift cam doğrama

  • Hazır tesisat ve montaj sistemi


Her Bütçeye Uygun, Ekonomik Çözüm

Betonarme yapılara göre çok daha uygun maliyetli olan prefabrik evler, kısa sürede teslim edilebilir.
Kuzey Konteyner & Prefabrik 69 m² ev modeli, fiyat-performans açısından en çok tercih edilen ekonomik konut çözümlerinden biridir.

Uygun fiyatının yanında bakım gerektirmeyen yapısı ve düşük enerji tüketimi sayesinde uzun vadede büyük tasarruf sağlar.


💰 Avantajlar

  • Ek inşaat maliyeti gerektirmez

  • Düşük enerji ve bakım gideri

  • Hızlı teslimat (7–10 iş günü)

  • Yüksek dayanıklılık ve güvenlik


Doğayla Uyumlu, Estetik Tasarım

Kuzey Konteyner & Prefabrik 69 m² modeli, doğa ile bütünleşen mimari formu ve modern cephe tasarımıyla öne çıkar.
Cephe kaplamasında kullanılan fibercement, ahşap görünümlü paneller veya boyalı sac seçenekleriyle estetik bir görünüm sunar.

Ayrıca veranda, pergola veya dış oturma alanı gibi ek tasarımlarla kişisel yaşam alanınızı özelleştirebilirsiniz.


Estetik Özellikler

  • Modern mimari çizgiler

  • İsteğe göre renk ve malzeme seçimi

  • Doğaya uyumlu cephe tasarımı

  • Kompakt ama ferah iç yerleşim


4 Mevsim Kullanım – Her Noktaya Kurulum

Kuzey Konteyner & Prefabrik 69 m² prefabrik ev modeli, Türkiye’nin tüm iklim koşullarına uygun olarak tasarlanmıştır.
Dayanıklı yapısı sayesinde yazlık bölgelerde olduğu kadar karasal iklimlerde de sorunsuz şekilde kullanılabilir.

Düz bir zemin üzerine kolayca kurulabilir ve taşınabilir modüler yapısı sayesinde farklı lokasyonlara da monte edilebilir.


Neden 69 m² Kuzey Konteyner & Prefabrik Evi Tercih Etmelisiniz?

  • Minimalist yaşam tarzına uygun, konforlu iç mekan

  • Uygun fiyatlı, hızlı teslimat avantajı

  • Depreme, rüzgâra ve neme dayanıklı yapı

  • Düşük enerji tüketimi ile tasarruflu sistem

  • Çevre dostu ve sürdürülebilir malzeme seçimi

  • Estetik, modern ve özelleştirilebilir tasarım


Sıkça Sorulan Sorular (SSS)

1. 69 m² prefabrik ev ne kadar sürede teslim edilir?
Fabrika üretimi tamamlandıktan sonra kurulum süresi ortalama 7 ila 10 iş günü arasındadır. Anahtar teslim olarak size sunulur.

2. 69 m² prefabrik evde yalıtım var mı?
Evet. Tüm Kuzey Konteyner & Prefabrik evlerinde olduğu gibi bu modelde de ısı ve ses yalıtımı mevcuttur.
EPS veya taş yünü kullanılarak dört mevsim konfor sağlanır.

3. Bu evi istediğim konuma yaptırabilir miyim?
Evet. 69 m² prefabrik evler, düz zeminli her türlü arsaya inşa edilebilir.
İsterseniz kırsal bir bölgede, isterseniz şehir dışında doğayla iç içe kullanabilirsiniz.


Detaylı Bilgi ve Teklif İçin

69 m² Kuzey Konteyner & Prefabrik ev modeli hakkında detaylı bilgi almak veya fiyat teklifi istemek için:
🌐 www.kuzeykonteynerprefabrik.com adresini ziyaret edin veya uzman ekibimizle iletişime geçin.


🏢 İletişim Bilgileri

Kuzey Konteyner & Prefabrik
📧 E-Posta: info@kuzeykonteyner.com
📞 Tel (Mobil): +90 (544) 293 30 43
📞 Tel (Sabit): +90 (312) 399 30 60
📍 Fabrika & Showroom:
Saray Mah. Keresteciler San. Sit. Adnan Menderes Bulv. No:33
Kahramankazan / Ankara

atomikwallet.com.co

Atomic Wallet Download

Jaxx Liberty Wallet

Jaxx Wallet Download